Solid_logo

EN

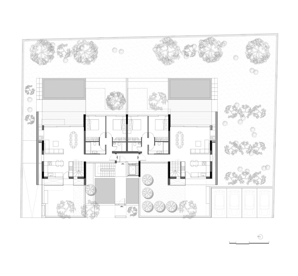
The “Solid Transparency” building embodies contrast and harmony through the composition of the void-full, creating a unique dialogue between the solid and the transparent. The topography of the site dictated the need for an architecture that naturally adapts to the environment, while responding to the imperative of maximum coverage without sacrificing the views, brightness and functionality of the interiors.
The building, with its earthy colours and symmetrical layout, creates a sense of balance and stability. The symmetry is broken by the exterior staircase, which is not just a vertical element connecting the levels of the structure, it is the point where the void penetrates the geometric world of the full, proposing a dimension that transcends its material presence and transforms into a living organism, embedded in the movement of the human body and everyday life. The alternation between solid and transparent surfaces captures the rhythm and flow of space, offering a sense of lightness that ensures both privacy and protection from sunlight. Here, the void and the complete are perceived not only as architectural elements, but also as concepts that promote the ongoing interaction between user and external environment. The interiors are dominated by white and wood, with a free arrangement and a strong presence of natural light.

The architecture of “Solid Transparency” expresses an understanding of the dynamics of location and the need for functionality and aesthetics, while at the same time emphasizing the notion of a constant transition between the hidden and the revealed, the solid and the transparent. 

GR

Το κτήριο “Solid Transparency” ενσαρκώνει την αντίθεση και την αρμονία μέσα από τη σύνθεση του κενού και του πλήρους, δημιουργώντας έναν μοναδικό διάλογο μεταξύ του στερεού και του διάφανου. Η τοπογραφία της περιοχής υπαγόρευσε την ανάγκη για μια αρχιτεκτονική που να προσαρμόζεται φυσικά στο περιβάλλον, ενώ ταυτόχρονα να ανταποκρίνεται στην επιτακτική ανάγκη μέγιστης κάλυψης, χωρίς να θυσιάζει τη θέα, τη φωτεινότητα και τη λειτουργικότητα των εσωτερικών χώρων.

Το κτίριο, με τα γήινα χρώματα και τη συμμετρική του διάταξη, δημιουργεί μια αίσθηση ισορροπίας και σταθερότητας. Η συμμετρία σπάει με το εξωτερικό κλιμακοστάσιο, το οποίο δεν είναι απλώς ένα κατακόρυφο στοιχείο που συνδέει τα επίπεδα της κατασκευής, είναι το σημείο όπου το κενό εισχωρεί στον γεωμετρικό κόσμο του πλήρους, προτείνοντας μια διάσταση που υπερβαίνει την υλική και ενσωματώνεται στην κίνηση του ανθρώπινου σώματος και της καθημερινότητας. Η εναλλαγή μεταξύ των στερεών και διάφανων επιφανειών αποτυπώνει τον ρυθμό και τη ροή του χώρου, προσφέροντας μια αίσθηση ελαφρότητας που διασφαλίζει και την ιδιωτικότητα και την προστασία από το ηλιακό φως. Εδώ, το κενό και το πλήρες γίνονται αντιληπτά όχι μόνο ως αρχιτεκτονικά στοιχεία, αλλά και ως έννοιες που προάγουν τη συνεχιζόμενη διάδραση χρήστη και εξωτερικού περιβάλλοντος. Στους εσωτερικούς χώρους κυριαρχεί το λευκό και το ξύλο, με ελεύθερη διάταξη και έντονη την παρουσία του φυσικού φωτός.

Η αρχιτεκτονική του “Solid Transparency” αφουγκράζεται τη δυναμική της τοποθεσίας και της ανάγκης για λειτουργικότητα και αισθητική, ενώ ταυτόχρονα υπογραμμίζει την έννοια της διαρκούς μετάβασης μεταξύ του κρυμμένου και του αποκαλυπτόμενου, του στερεού και του διαφανούς.

YEAR
2018

AREA
1.650 m2

LOCATION
Voula

PHOTOGRAPHER
Yiorgis Yerolympos

Architectural design + supervision / Αρχιτεκτονική Μελέτη + επίβλεψη
Gavalas Architects

Structural design + supervision / Στατική Μελέτη + επίβλεψη
Gavalas Architects

MEP design + supervision / Ηλεκτρομηχανολογικές Μελέτες + επίβλεψη
Gavalas Architects

Construction Management / Διαχείριση εργοταξίου
Gavalas Architects