Raytron_logo

EN

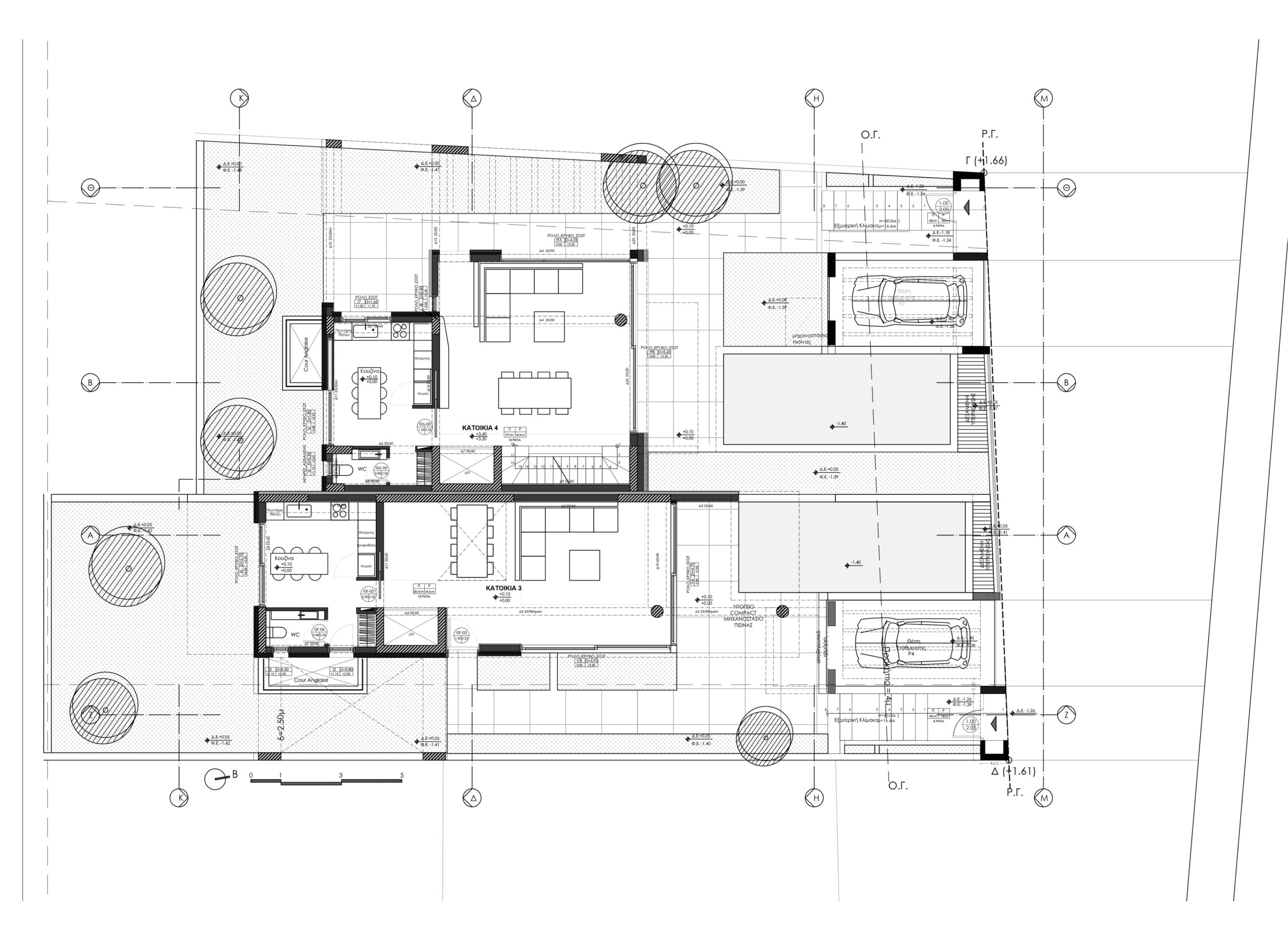
The main design axis is the mirroring of two volumes in a way that breaks symmetry. Two main volumes abutting a blind and rigid boundary giving space to 4 stand-alone dwellings.  The contact connection of these volumes forms four autonomous dwellings that combine the principles of functionality and aesthetics. This arrangement breaks the symmetry of the building, offering a sense of dynamism and innovation, while creating a dialectical relationship between enclosed and open spaces.
The most characteristic element of the composition is the creation of the impression of the suspension of large volumes, which is achieved through the use of glazing that “conceals” the static structures of the building. This creates a sense that the building is supported not through the traditional solid base, but through the common axis of non-symmetry.
The use of concrete as the main construction material gives the building an industrial tone, which enhances the sense of modern architecture. In contrast, the large glass panels allow natural light to enter the interior spaces unhindered, creating a pleasant atmosphere and contact with the external environment, enhancing the sense of transparency and ease.

GR

Βασικός άξονας σχεδιασμός είναι ο αντικατοπτρισμός δύο όγκων με τρόπο τέτοιο που να σπάει τη συμμετρία. Δυο βασικοί όγκοι που εφάπτονται σε ένα τυφλό και άκαμπτο ορίου δίνοντας χώρο σε 4 αυτόνομες κατοικίες.  Η εξ επαφής σύνδεση αυτών των όγκων διαμορφώνει τέσσερις κατοικίες που συνδυάζουν τις αρχές της λειτουργικότητας, της αισθητικής και του αλληλοσεβασμού. Η διάταξη αυτή σπάει τη συμμετρία του κτιρίου, προσφέροντας μια αίσθηση δυναμισμού και καινοτομίας, ενώ παράλληλα δημιουργείται μια διαλεκτική σχέση μεταξύ κλειστών και ανοιχτών χώρων. Το πιο χαρακτηριστικό στοιχείο της σύνθεσης είναι η δημιουργία της εντύπωσης της αιώρησης μεγάλων όγκων, η οποία επιτυγχάνεται μέσω της χρήσης υαλοστασίων που «αποκρύπτουν» τις στατικές δομές του κτιρίου. Αυτό δημιουργεί μια αίσθηση ότι το κτίριο στηρίζεται όχι μέσω της παραδοσιακής συμπαγούς βάσης, αλλά μέσω του κοινού άξονα μη συμμετρίας. Η χρήση του σκυροδέματος ως κύριο κατασκευαστικό υλικό προσδίδει στο κτίριο έναν βιομηχανικό τόνο, ο οποίος ενισχύει την αίσθηση της μοντέρνας αρχιτεκτονικής. Αντίθετα, τα μεγάλα γυάλινα πάνελ επιτρέπουν στο φυσικό φως να εισέρχεται απρόσκοπτα στους εσωτερικούς χώρους, δημιουργώντας ευχάριστη ατμόσφαιρα και επαφή με το εξωτερικό περιβάλλον, ενισχύοντας την αίσθηση της διαφάνειας και της ευχέρειας.

YEAR
2025

AREA
418 m2

LOCATION
Vari

PHOTOGRAPHER

Architectural design + supervision / Αρχιτεκτονική Μελέτη + επίβλεψη
Gavalas Architects & Barbatsis Architects

Structural design + supervision / Στατική Μελέτη + επίβλεψη
Roussakis Polychronis

MEP design + supervision / Ηλεκτρομηχανολογικές Μελέτες + επίβλεψη
MArgiros Charalabos – Ilias

Construction Management / Διαχείριση εργοταξίου
Gavalas Architects