Pnoe_logo

EN

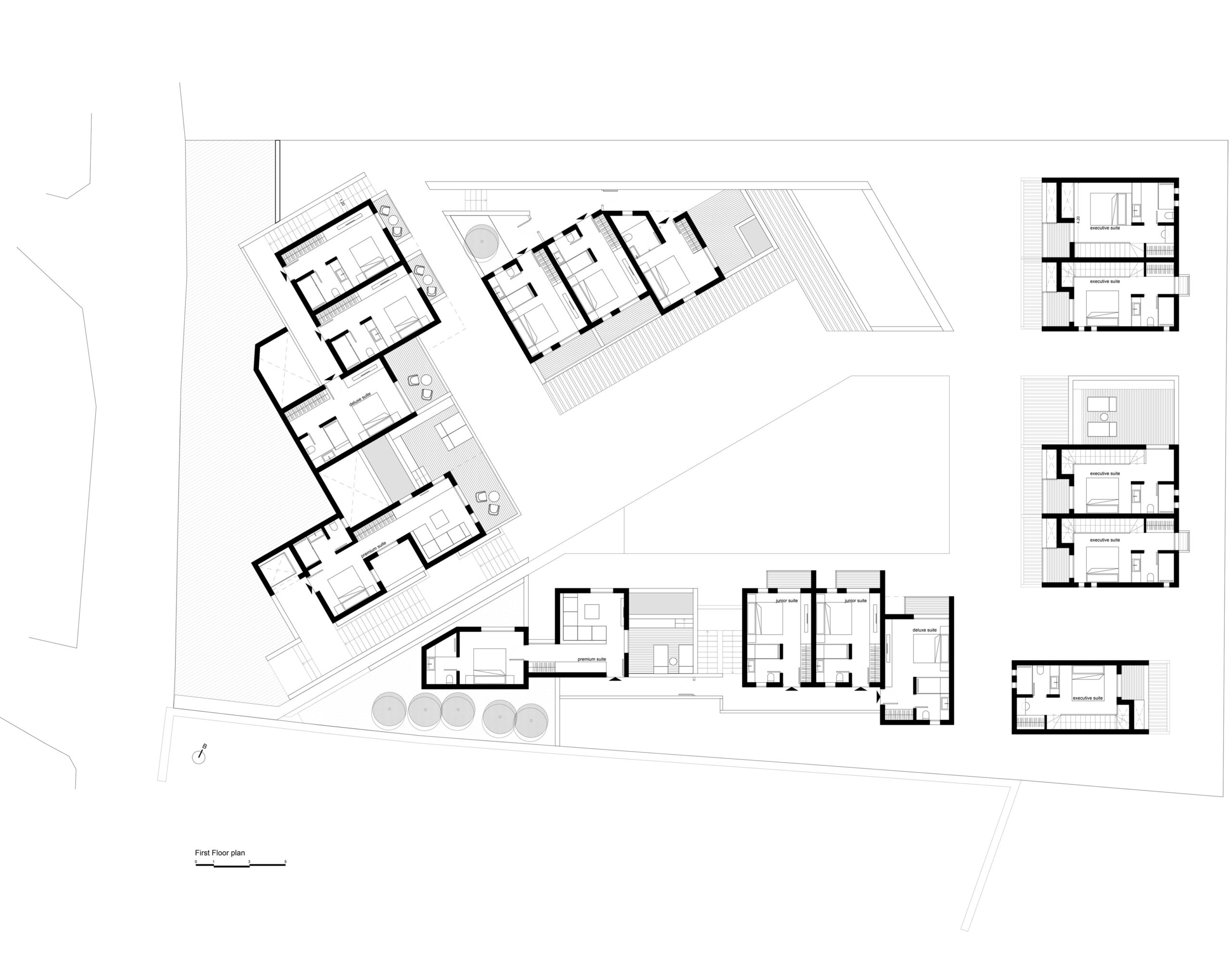
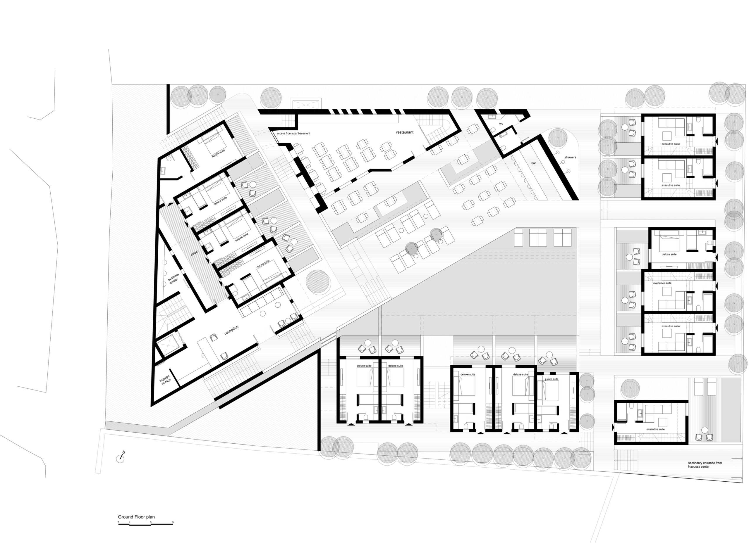
The hotel “Pnoe Village” in Paros combines in a unique way the traditional Cycladic architecture with modern elements, offering an authentic and at the same time sophisticated hospitality experience. Built with respect to the local tradition, the hotel uses natural materials such as wood and stone, incorporating them into the modern architectural lines and the minimal aesthetics of the space. The combination of these materials creates a warm and welcoming atmosphere that harmonizes perfectly with the natural landscape of the island.

The modern version of traditional Cycladic architecture in the hotel is not only limited to the exterior environment, but also extends to the interiors. The comfortable and bright spaces combine traditional details, such as stone walls and wooden ceilings, with modern intentions and minimalist decoration, offering an elegant and relaxing atmosphere. Every corner of the hotel inspires a sense of calm and harmony.
The synthesis of traditional and modern, stone and wood, the movement of water and the stability of the earth, compose a unique space that inspires guests to reconnect with nature, find peace and renewal, while enjoying the modern comforts of a luxury accommodation.

GR

Το ξενοδοχείο “Pnoe Village” στην Πάρο συνδυάζει την παραδοσιακή κυκλαδίτικη αρχιτεκτονική με μοντέρνα στοιχεία, προσφέροντας μια αυθεντική και ταυτόχρονα εκλεπτυσμένη εμπειρία φιλοξενίας. Χτισμένο με σεβασμό στην παράδοση της Νάουσας, το ξενοδοχείο αξιοποιεί φυσικά υλικά όπως το ξύλο και την πέτρα, ενσωματώνοντάς τα στις σύγχρονες αρχιτεκτονικές γραμμές και τη εκλεπτυσμένη αισθητική του χώρου. Ο συνδυασμός αυτών των υλικών δημιουργεί μια ζεστή και φιλόξενη ατμόσφαιρα που εναρμονίζεται με το φυσικό τοπίο του νησιού.

Η μοντέρνα εκδοχή της παραδοσιακής οικιστικής αρχιτεκτονικής στο ξενοδοχείο δεν περιορίζεται μόνο στο εξωτερικό περιβάλλον, αλλά επεκτείνεται και στους εσωτερικούς χώρους. Οι άνετοι και φωτεινοί χώροι συνδυάζουν τις παραδοσιακές λεπτομέρειες, όπως οι πέτρινες τοιχοποιίες και οι ξύλινες οροφές, με σύγχρονες προθέσεις και διακριτική διακόσμηση, προσφέροντας μια κομψή και χαλαρωτική ατμόσφαιρα. Κάθε γωνιά του ξενοδοχείου εμπνέει μια αίσθηση ηρεμίας και αρμονίας.

Η σύνθεση του παλιού και του μοντέρνου, της πέτρας και του ξύλου, της κίνησης του νερού και της σταθερότητας της γης, συνθέτει έναν χώρο που εμπνέει τους επισκέπτες να επανασυνδεθούν με τη φύση, να βρουν τη γαλήνη και την ανανέωση, ενώ ταυτόχρονα απολαμβάνουν τις σύγχρονες ανέσεις ενός πολυτελούς καταλύματος. Η κεντρική πισίνα με το εστιατόριο, αποτελεί τον πυρήνα των καθημερινών ανθρώπινων λειτουργιών.

YEAR
2027

AREA
1.800 m2

LOCATION
Naussa, Paros

PHOTOGRAPHER

Architectural design + supervision / Αρχιτεκτονική Μελέτη + επίβλεψη
Gavalas Architects

Structural design + supervision / Στατική Μελέτη + επίβλεψη

MEP design + supervision / Ηλεκτρομηχανολογικές Μελέτες + επίβλεψη

Construction Management / Διαχείριση εργοταξίου