Mycynae_logo

EN

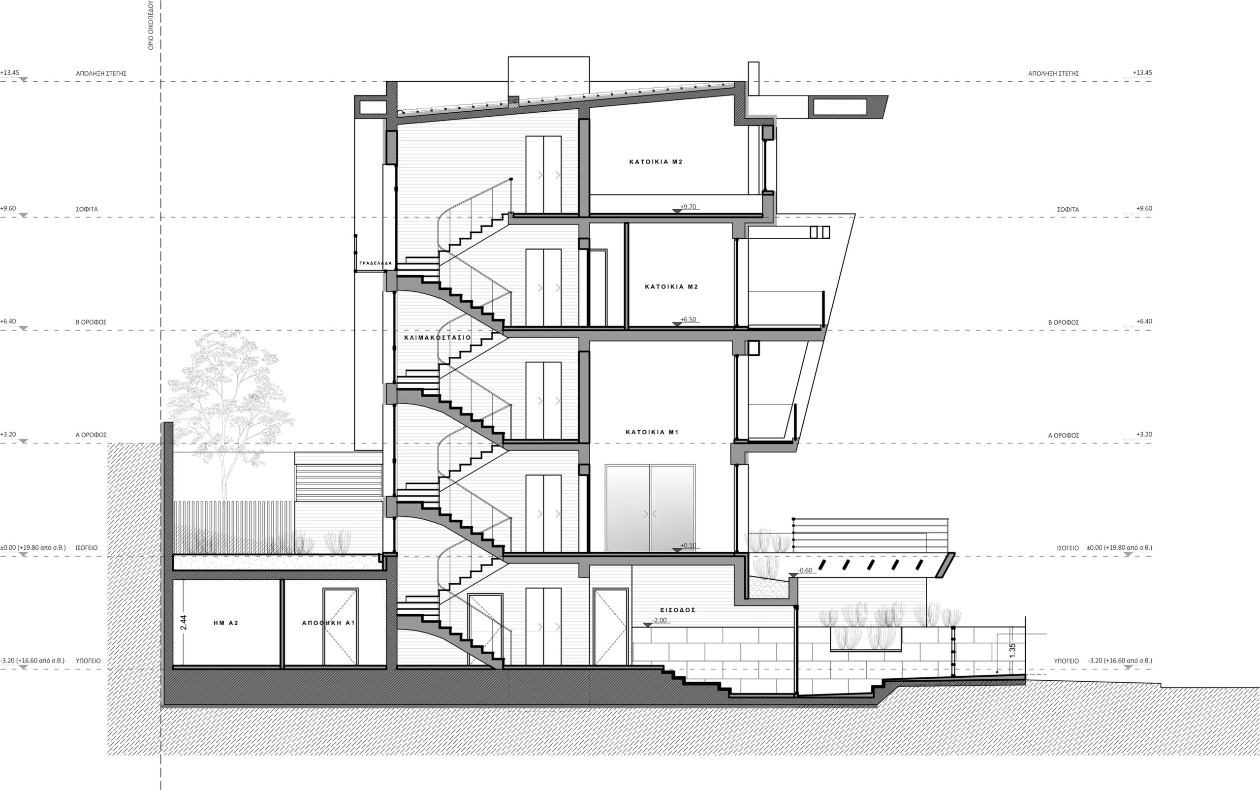
The building is inspired by the vaulted Mycenaean tomb of Atreus as an allegorical connection between ancient monumental architecture and a modern version of it. The main architectural axis is characterized by large vertical structures that pay homage to the imposing forms of the Mycenaean tombs, while creating a strong visual impact, highlighting the intensity of space and form.
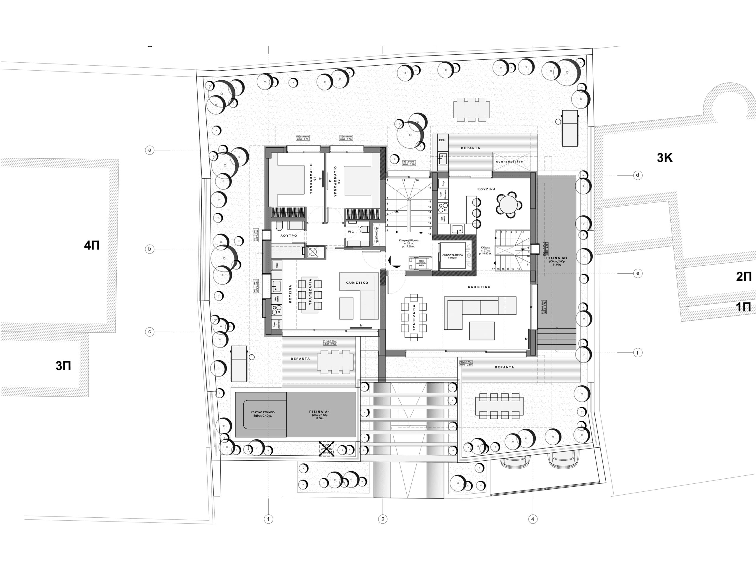
The entrance to the apartment building reverses the traditional structure of the entrance to the Mycenaean vaulted tomb. Here, the inversion of the entrance as a design decision represents the denial of death, aiming for a positive transition into the world of life, everyday life and creation.
This contrast is also reinforced by the vertical elements emerging in the building, which create a sense of upward movement, reinforcing the idea of rebirth and ongoing evolution. The imaginary union of the earthly and the heavenly. These elements, reminiscent of the defensive lines of ancient Mycenaean architecture, are linked to the notion of protection and strength, being at the same time a symbol of timeless resilience and a modern monumental imposingness.

The concept of shelter is also conveyed in the interior space, exuding a mystique with atmospheric lighting and textures. Materials such as stone, wood and concrete mimic the architecture of vaulted tombs. The building aims to bring together ancient Greek monumentality with modern urban life and the contradictions of human life. Seeking to synthesize a bipolar simulation of dark majesty and luminous rebirth through the architectural act.

GR

Η πολυκατοικία είναι  εμπνευσμένη από το θολωτό μυκηναϊκό τάφο του Ατρέα ως μια αλληγορική σύνδεση της αρχαίας μνημειακής αρχιτεκτονικής με μια σύγχρονη εκδοχή της. Ο βασικός αρχιτεκτονικός άξονας χαρακτηρίζεται από μεγάλες κατακόρυφες δομές που αποδίδουν φόρο τιμής στις επιβλητικές μορφές των Μυκηναϊκών ταφών, ενώ ταυτόχρονα δημιουργούν έναν ισχυρό οπτικό αντίκτυπο, αναδεικνύοντας την ένταση του χώρου και της μορφής.

Η είσοδος της πολυκατοικίας αντιστρέφει την παραδοσιακή δομή της εισόδου στον Μυκηναϊκό θολωτό τάφο. Εδώ, η αναστροφή της εισόδου ως σχεδιαστική απόφαση αναπαριστά την άρνηση του θανάτου, αποσκοπώντας σε μια θετική μετάβαση στον κόσμο της ζωής, της καθημερινότητας και της δημιουργίας.

Η αντίθεση αυτή ενισχύεται και από τα κατακόρυφα στοιχεία που αναδύονται στο κτίριο, τα οποία δημιουργούν την αίσθηση της κίνησης προς τα πάνω, ενισχύοντας την ιδέα της αναγέννησης και της συνεχιζόμενης εξέλιξης. Η νοητή ένωση του επίγειου με το ουράνιο. Αυτά τα στοιχεία, που θυμίζουν τις αμυντικές γραμμές της αρχαίας Μυκηναϊκής αρχιτεκτονικής, συνδέονται με την έννοια της προστασίας και της ισχύος, αποτελώντας ταυτόχρονα σύμβολο της διαχρονικής ανθεκτικότητας και μιας σύγχρονης μνημειακής επιβλητικότητας.

Η έννοια του καταφυγίου αποδίδεται και στον εσωτερικό χώρο αποπνέοντας μια μυστικότητα με ατμοσφαιρικούς φωτισμούς και υφές. Υλικά όπως η πέτρα, το ξύλο και το σκυρόδεμα μιμούνται την αρχιτεκτονική των θολωτών τάφων. Στόχος του κτιρίου είναι η συνεύρεση της αρχαίας ελληνικής μνημειακότητας με τη σύγχρονη ζωή στον αστικό ιστό και τις αντιφάσεις του ανθρώπινου βίου. Επιδιώκοντας να συνθέσει μια διπολική προσομοίωση της  σκοτεινής επιβλητικότητας και φωτεινής αναγέννησης μέσω της αρχιτεκτονικής πράξης.

YEAR
2025

AREA
1.046 m2

LOCATION
Voula

PHOTOGRAPHER

Architectural design + supervision / Αρχιτεκτονική Μελέτη + επίβλεψη
Gavalas Architects

Structural design + supervision / Στατική Μελέτη + επίβλεψη
Dimitris Theodosiou

MEP design + supervision / Ηλεκτρομηχανολογικές Μελέτες + επίβλεψη
ENERTEK

Construction Management / Διαχείριση εργοταξίου
Gavalas Architects