Laskaridou_logo

EN
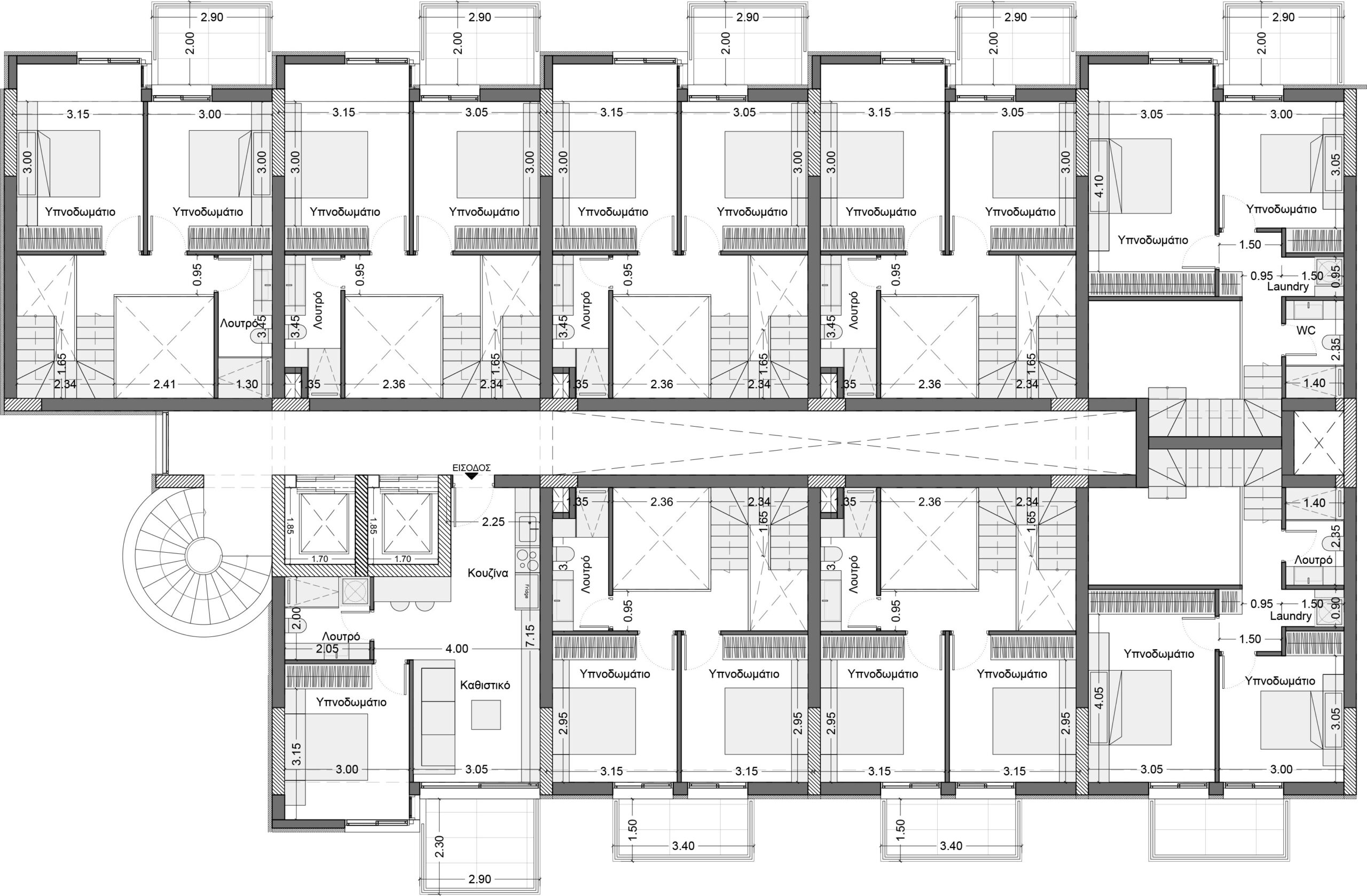
The apartment building in Kallithea is developed on eight levels, a composition that explores the plasticity of exposed concrete and the dynamics of light through perforated structural elements. The design follows a contemporary architectural language, where the rawness of the materials is in dialogue with the geometric purity of the volumes and the intensity of colour, creating a layered aesthetic experience.  The development scope was to accommodate student houses for Harokopeio  University which is located on the back side of the plot. The facade is characterized by the use of perforated surfaces with repeated square gaps, which act as filters of light and shadow. These elements, in addition to their bioclimatic role, reinforce the morphological identity of the building, giving it rhythm and a sense of transparency. The exposed concrete, as a base material, is emphasized through the textures of the wood type, highlighting the scale of the structure and creating a sense of relief that intertwines with the urban fabric. The orange element appears strategically on the facades, either as vertical and horizontal details or as cladding on selected parts of the structure. The intensity of the colour interrupts the monochromatic feel of the concrete, creating a play of contrasts and giving the building a distinctive identity. These colours also function as guides for movement, highlighting entrances, boundaries and outlying areas, while at the same time emphasising specific parts of the façade.The development of the building is organised through a structure that clearly separates private and public zones through the use of the circular and glass staircase. The dwellings have large openings that benefit from natural light and views of the city, while the perforated elements act as protective screens, balancing privacy with visual continuity to the external environment. The use of concrete as a thermal mass, combined with the perforated skin, allows the creation of a microclimate that shapes thermal comfort conditions for the inhabitants. This building is a volumetric exercise and a research approach to the relationship between materials, light and colour, where the robustness of concrete meets the transparency of perforated surfaces and the intensity of orange, forming a dynamic and contemporary urban landmark building in Kallithea.

GR
Η πολυκατοικία στην Καλλιθέα αναπτύσσεται σε οκτώ επίπεδα, αποτελώντας μια σύνθεση που εξερευνά την πλαστικότητα του εμφανoύς σκυροδέματος και τη δυναμική του φωτός μέσα από διάτρητα δομικά στοιχεία. Το έργο αποσκοπέι να φιλοξενεί κατά κύριο λόγο τυποποιημένες μικρές κατοικίες για φοιτητές του Χαροκόπειου που βρίσκεται ακριβώς στο όμορο Οικοδομικό Τετράγωνο. Ο σχεδιασμός ακολουθεί μια σύγχρονη αρχιτεκτονική γλώσσα, όπου η ωμότητα των υλικών έρχεται σε διάλογο με τη γεωμετρική καθαρότητα των όγκων και την ένταση του χρώματος, δημιουργώντας μια πολυεπίπεδη αισθητική εμπειρία. Η πρόσοψη χαρακτηρίζεται από τη χρήση διάτρητων επιφανειών με επαναλαμβανόμενα τετράγωνα κενά, τα οποία λειτουργούν ως φίλτρα φωτός και σκιάς. Αυτά τα στοιχεία, εκτός από τον βιοκλιματικό τους ρόλο, ενισχύουν τη μορφολογική ταυτότητα του κτιρίου, προσδίδοντάς του ρυθμό και μια αίσθηση διαφάνειας. Το εμφανές σκυρόδεμα, ως βασικό υλικό, τονίζεται μέσα από τις υφές του ξυλoτύπου, αναδεικνύοντας την κλίμακα της κατασκευής και δημιουργώντας μια αίσθηση ανάγλυφου που συνδιαλέγεται με τον αστικό ιστό. Το στοιχείο του πορτοκαλί χρώματος εμφανίζεται στρατηγικά στις όψεις, είτε ως κατακόρυφες και οριζόντιες λεπτομέρειες είτε ως επενδύσεις σε επιλεγμένα τμήματα της κατασκευής. Η ένταση του χρώματος διακόπτει τη μονοχρωματική αίσθηση του σκυροδέματος, δημιουργώντας ένα παιχνίδι αντιθέσεων και προσδίδοντας μια χαρακτηριστική ταυτότητα στο κτίριο. Οι χρωματισμοί αυτοί λειτουργούν και ως οδηγοί κίνησης, υπογραμμίζοντας εισόδους, όρια και εξοχές, ενώ ταυτόχρονα δίνουν έμφαση σε συγκεκριμένα τμήματα της όψης. Η ανάπτυξη του κτιρίου οργανώνεται μέσω μιας δομής που διαχωρίζει σαφώς τις ιδιωτικές και κοινόχρηστες ζώνες με τη χρήση του κυκλικού και γυάλινου κλιμακοστάσιου. Οι κατοικίες διαθέτουν μεγάλα ανοίγματα που επωφελούνται από το φυσικό φως και τη θέα προς την πόλη, ενώ τα διάτρητα στοιχεία λειτουργούν ως προστατευτικά πετάσματα, εξισορροπώντας την ιδιωτικότητα με την οπτική συνέχεια προς το εξωτερικό περιβάλλον. Η πολυκατοικία αυτή αποτελεί μια ογκομετρική άσκηση και μια ερευνητική προσέγγιση στη σχέση μεταξύ υλικών, φωτός και χρώματος, όπου η στιβαρότητα του σκυροδέματος συναντά τη διαφάνεια των διάτρητων επιφανειών και την ένταση του πορτοκαλί, διαμορφώνοντας ένα δυναμικό και σύγχρονο αστικό κτήριο-τοπόσημο στην Καλλιθέα.

YEAR
2023

AREA
3.270 m2

LOCATION
Kallithea

PHOTOGRAPHER

Architectural design + supervision / Αρχιτεκτονική Μελέτη + επίβλεψη Gavalas Architects.
Antonis Gavalas

Structural design + supervision / Στατική Μελέτη + επίβλεψη
Dimitris Theodosiou

MEP design + supervision / Ηλεκτρομηχανολογικές Μελέτες + επίβλεψη
Kravvaritis & Partners

Construction Management / Διαχείριση εργοταξίου

ΝΙΚΗΦΟΡΟΣ ΤΟΛΗΣ

Ο Νικηφόρος γεννημένος στην Ν. Σμύρνη Αττικής. Σπούδασε στο πολυτεχνείο της Κρήτης στο τμήμα αρχιτεκτόνων μηχανικών. Τα αρχιτεκτονικά του ενδιαφέροντα του στρέφονται γύρω από το πολυδιάστατο του δομικού ορίου και μορφής. Η επαγγελματική του εμπειρία ξεκίνησε από τεχνικό γραφείο με υποδομές και έργα κλίμακας. Στη συνέχεια απέκτησε εμπειρία σε αρχιτεκτονικό γραφείο στον σχεδιασμό κατοικιών στις Κυκλάδες, ενώ ταυτόχρονα έχει συμμετάσχει σε αρχιτεκτονικούς διαγωνισμούς.

ΧΡΙΣΤΙΝΑ ΡΑΦΤΟΠΟΥΛΟΥ

 

Γεννήθηκε και μεγάλωσε στην Αθήνα. Σπούδασε αρχιτεκτονική στην Αρχιτεκτονική Σχολή του Πανεπιστημίου Πατρών από όπου και αποφοίτησε το 2015, ενώ το 2019 ολοκλήρωσε το Διατμηματικό Πρόγραμμα Μεταπτυχιακών Σπουδών του ΕΜΠ με κατεύθυνση «Πολεοδομία – Χωροταξία». Από το 2018 είναι μέλος του ΤΕΕ. Από το 2016 έχει συνεργαστεί με τεχνικά και αρχιτεκτονικά γραφεία στην Αθήνα, κυρίως σε έργα μικρής και μεσαίας κλίμακας έχοντας αναβαθμισμένο ρόλο στην εξέλιξη των έργων, από το στάδιο προμελέτης – παρουσίασης έως και την επίβλεψη της κατασκευής. Έχει λάβει μέρος σε workshop στην Ελλάδα και στο εξωτερικό και έχει διδάξει Πολεοδομία στα πλαίσια παροχής επικουρικού διδακτικού έργου κατά τη διάρκεια των μεταπτυχιακών της σπουδών. Πιστεύει ότι η αρχιτεκτονική είναι μια δυναμική διαδικασία και αναζητά τη διαρκή εξέλιξη στην επαγγελματική της σταδιοδρομία και την απόκτηση νέων γνώσεων.

ΓΙΟΥΛΗ ΠΑΠΑΝΑΣΤΑΣΙΟΥ

 

Γεννήθηκε στην Αθήνα και αποφοίτησε από την Αρχιτεκτονική Σχολή του Αριστοτελείου Πανεπιστημίου Θεσσαλονίκης (Α.Π.Θ.). Διαθέτει εξειδικευμένη επιμόρφωση στην «Τεχνολογία Τοπίου και Σχεδιασμό Φυτεύσεων» (Ε.Κ.Π.Α.) και, από το 2024, είναι Πιστοποιημένη Σχεδιάστρια Παθητικών Κτιρίων (Ελληνικό Ινστιτούτο Παθητικών Κτιρίων).
Έχει εργαστεί στην Ελλάδα και στη Σερβία, αναλαμβάνοντας τον σχεδιασμό και την επίβλεψη έργων κατοικίας, γραφείων, χώρων εστίασης, αγροτουριστικών εγκαταστάσεων, χώρων δημιουργικής απασχόλησης παιδιών, καθώς και την επέκταση πλωτού ξενοδοχείου (διάκριση BIG SEE Awards). Επιπλέον, έχει δραστηριοποιηθεί στη σύνταξη τεχνικών τευχών προδιαγραφών αρχιτεκτονικών υλικών.
Παράλληλα, έχει συμμετάσχει σε διεθνείς και εθνικούς Αρχιτεκτονικούς Διαγωνισμούς Ιδεών, μεταξύ των οποίων: «Europan 6» (Διάκριση: Β΄ επιλαχόντες), «Καταστήματα Γραφείων ΔΡΟΜΕΑΣ» (Διάκριση: Α΄ επιλαχόντες), «Room 18», «Cook 8», «Pandemic Architecture».
Έχει συγγράψει το βιβλίο με τίτλο «Κτίρια Ελλήνων της Διασποράς σε μια Θετή Πατρίδα» (Ζέμουν – Βελιγράδι, 18ος–20ός αιώνας).
Διακρίνεται για την ευαισθησία και το ιδιαίτερο ενδιαφέρον της στη βιώσιμη αρχιτεκτονική και στην καινοτομία, με έμφαση στη δημιουργία ενεργειακά αυτόνομων κελυφών κτιρίων και αρχιτεκτονικών τοπίων.

ΧΡΥΣΑ ΜΑΝΩΛΑΡΑΚΗ

Ολοκλήρωσε τις σπουδές της στη Σχολή Αρχιτεκτόνων Μηχανικών του Δημοκρίτειου Πανεπιστημίου Θράκης από όπου αποφοίτησε με άριστα. Κατά την διάρκεια των σπουδών της συμμετείχε σε διαπανεπιστημιακά εργαστήρια στην Ελλάδα και το εξωτερικό. Μετά την ολοκλήρωση των σπουδών της εργάστηκε πάνω σε διάφορα projects μικρής και μεγάλης κλίμακας αποκτώντας εμπειρία στον σχεδιασμό και υλοποίηση έργων κατοικιών, ξενοδοχείων, επαγγελματικών χώρων καθώς και χώρων εστίασης.
gavalas-architects
Επισκόπηση Απορρήτου

Αυτός ο ιστότοπος χρησιμοποιεί cookies, ώστε να μπορούμε να σας παρέχουμε την καλύτερη δυνατή εμπειρία χρήστη. Οι πληροφορίες των cookies αποθηκεύονται στο πρόγραμμα περιήγησής σας και εκτελούν λειτουργίες όπως η αναγνώρισή σας όταν επιστρέφετε στον ιστότοπό μας και η βοήθεια της ομάδας μας να κατανοήσει ποιες ενότητες του ιστότοπου θεωρείτε πιο ενδιαφέρουσες και χρήσιμες.

Περισσότερες πληροφορίες σχετικά με την Πολιτική Απορρήτου μας