Incision_logo

EN
The “Incision” apartment building, with its contemporary, rigorous aesthetic, highlights a synthetic architectural language that embraces functionality and form with geometric precision. Sharp edges and clean lines form an imposing volume with strong perspectives, while at the same time the use of glass supports the concept of open, transparent living.
The dynamism of the composition is intensified by the complexity of the forms in a rhythm that does not obey the internal function or imply the separation of properties. Each strict schematic entity is part of a whole defined through an unpredictable repetitiveness without fragmentary tendencies.
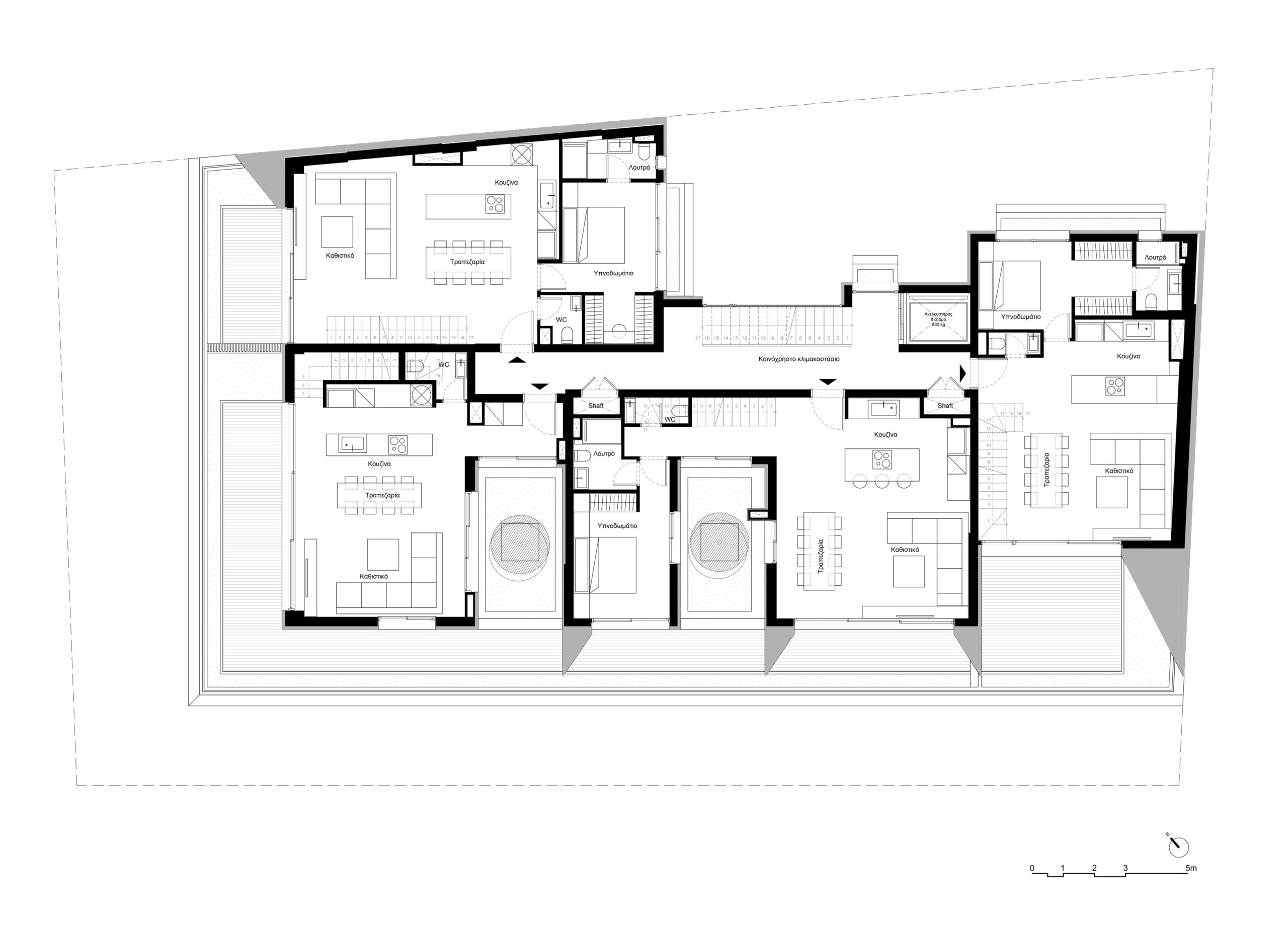
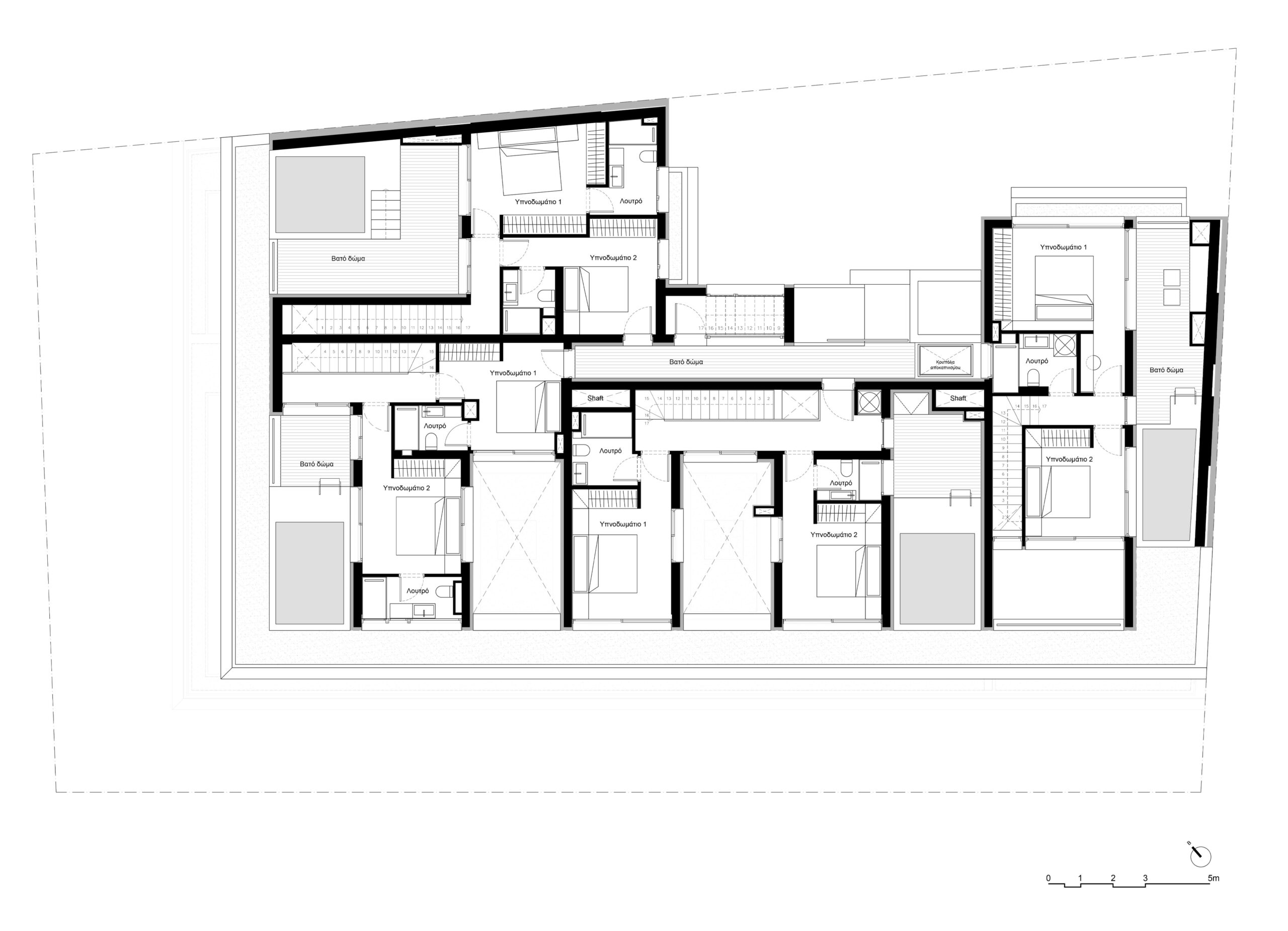
The balconies, positioned with precision and harmonious balance in the elevation, offer spaces of contact with the natural environment, while at the same time incorporating natural elements within the urban fabric, creating a dynamic contrast with the severity of the white surface. It is a reference to nature in the city, offering life and well-being in a strictly technocratic world. Each unit consists of customized apartments that are integrated with each other, in order to maximize spatial usability and visual continuity between the individual spaces.
The use of the white colour enhances the sense of light and the transparent coexistence of spaces that reflects the contemporary need for sustainability and absolute transparency. This design highlights the values of symmetry without being symmetrical, repetition of form without being repetitive and transparency without lacking privacy.

GR
Η πολυκατοικία “Incision”, με τη σύγχρονη, αυστηρή αισθητική της, αναδεικνύει μια συνθετική αρχιτεκτονική γλώσσα που αγκαλιάζει τη λειτουργικότητα και τη μορφή με γεωμετρική ακρίβεια. Οι αιχμηρές ακμές και οι καθαρές γραμμές σχηματίζουν έναν επιβλητικό όγκο με έντονες προοπτικές φυγές, ενώ ταυτόχρονα με τη χρήση του γυαλιού υποστηρίζει την έννοια της ανοιχτής, διαφανούς διαβίωσης.
Η δυναμικότητα της σύνθεσης εντείνεται με την πολυπλοκότητα των μορφών με ρυθμό τέτοιο που δεν υπακούει στην εσωτερική λειτουργία ούτε υπαινίσσεται το διαχωρισμό των ιδιοκτησιών. Κάθε αυστηρή σχηματική οντότητα είναι μέρος ενός όλου που ορίζεται μέσω μιας απρόβλεπτης επαναληπτικότητας χωρίς αποσπασματικές τάσεις.
Οι εξώστες, τοποθετημένοι με ακρίβεια και αρμονική ισορροπία στην όψη, προσφέρουν χώρους επαφής με το φυσικό περιβάλλον, ενώ ταυτόχρονα ενσωματώνουν φυσικά στοιχεία μέσα στον αστικό ιστό, δημιουργώντας μια δυναμική αντίθεση με την αυστηρότητα της λευκής επιφάνειας. Πρόκειται για μια αναφορά στη φύση μέσα στην πόλη, που προσφέρει ζωή και ευεξία σε έναν αυστηρά τεχνοκρατικό κόσμο. Κάθε μονάδα αποτελείται από προσαρμοσμένα διαμερίσματα που ενσωματώνονται μεταξύ τους, με σκοπό την μεγιστοποίηση της χωρικής χρηστικότητας και την οπτική συνέχεια μεταξύ των επιμέρους χώρων.
Η χρήση του λευκού χρώματος ενισχύει την αίσθηση του φωτός και της διάφανης συνύπαρξης των χώρων που αντανακλά τη σύγχρονη ανάγκη για βιωσιμότητα και απόλυτη διαφάνεια. Ο σχεδιασμός αυτός αναδεικνύει τις αξίες της συμμετρίας χωρίς να είναι συμμετρικό, της επανάληψης φόρμας χωρίς να επαναλαμβάνεται και της διαφάνειας χωρίς να στερείται ιδιωτικότητας.

YEAR
2013

AREA
1370 m2

LOCATION
Kalithea, Athens

RENDERING
Antonis Gavalas

Architectural design + supervision / Αρχιτεκτονική Μελέτη + επίβλεψη
Gavalas Architects. Antonis Gavalas & Renos Palapanis

Structural design + supervision / Στατική Μελέτη + επίβλεψη
Filippos Nikolaou

MEP design + supervision / Ηλεκτρομηχανολογικές Μελέτες + επίβλεψη
KHM

Construction Management / Διαχείριση εργοταξίου
Stamatis Anagnostopoulos