Holy_Road_logo

EN

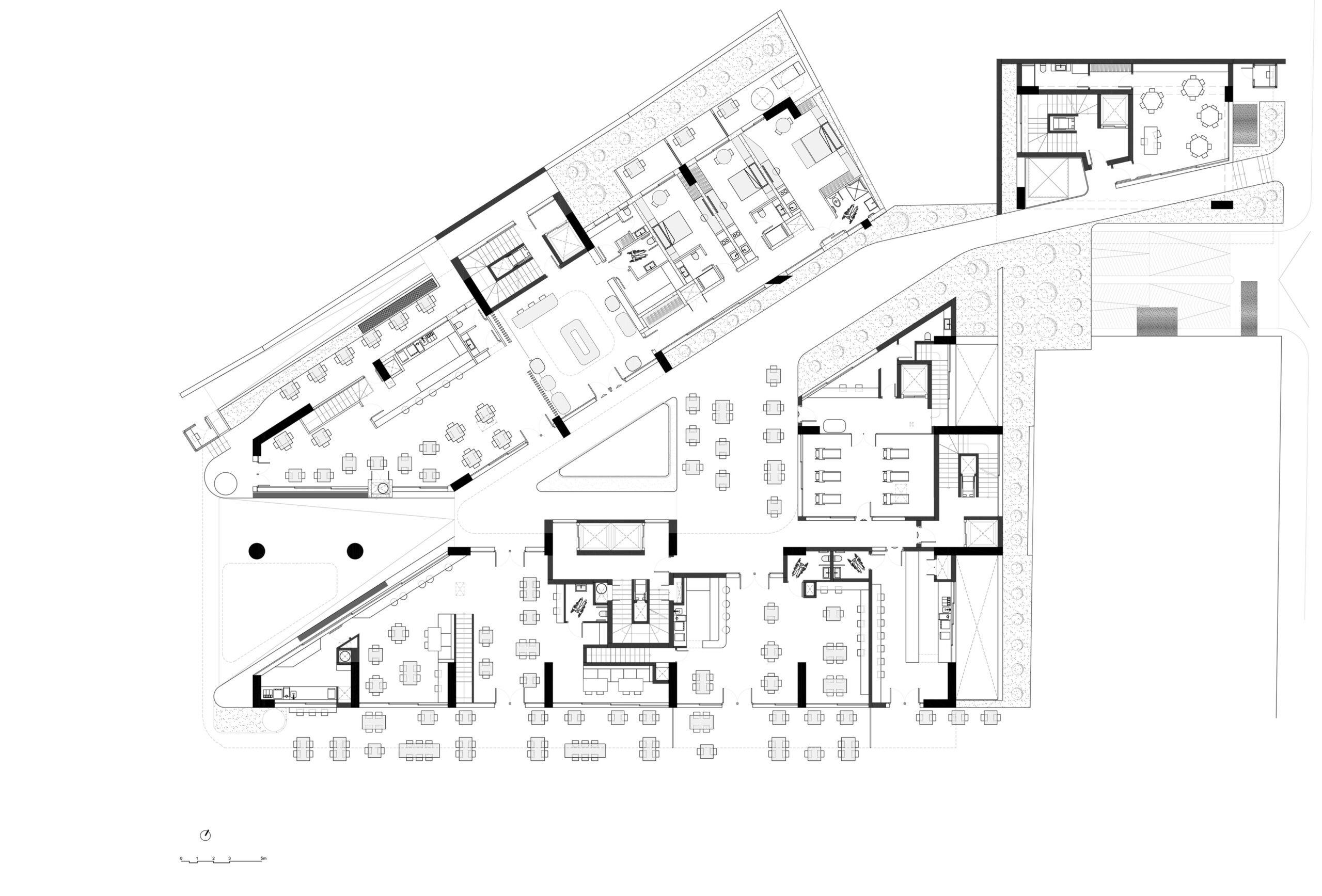
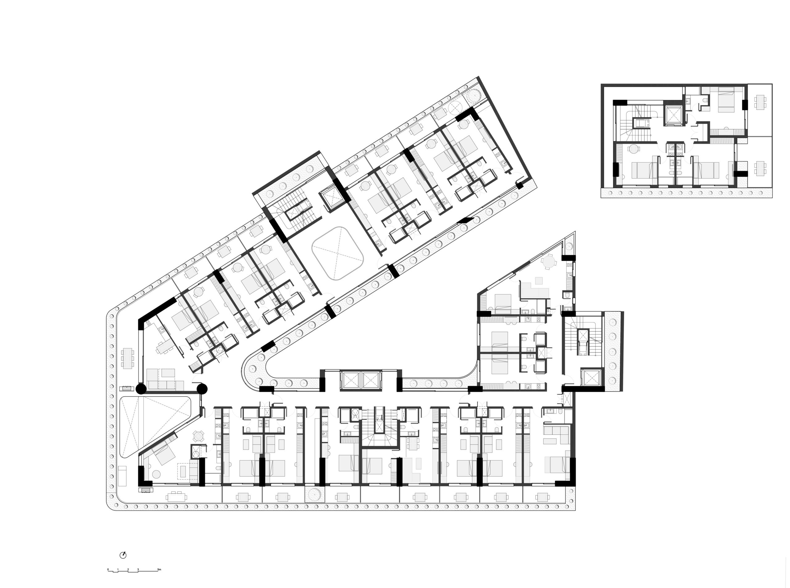
The aim of each building is its nodal existence, its identity within the urban fabric as a unique work that will force the visitor to stop and look at it. The building on Iera Odos functions as an anti-node, embodying the concept of movement, connection and continuous flow, the aim is to move rather than stop. It is designed to be an active gathering and assembly space. The building, having the notion of ephemerality, develops around a strong curved geometry that alludes to paths and routes. In this way it creates a sense of perpetual movement, predisposing the passer-by to enter and leave. The ground floor has a public character as it houses the shops and catering facilities. The upper levels have a private character which is achieved by the moving blinds.

The organic curve, which runs through the building , acts as an artery leading the user through different phases and perceptual functions. The spaces were designed to allow for natural transitions with alternations of light and shadow, creating aesthetic experiences that develop in the fourth dimension of time.

The residences coexist harmoniously with the commercial activity, forming a multifunctional core. The combination of public and private space is reflected in an ever-changing interaction in the urban fabric. The curves give a natural, almost biomorphic, quality to the space, avoiding the straight lines and strict angles that often limit the perception of movement. It is, in essence, a building-passage.

GR

Στόχος κάθε κτιρίου είναι η κομβική του ύπαρξη, η ταυτότητα του μέσα στον αστικό ιστό ως μοναδικό έργο που θα αναγκάσει τον επισκέπτη να σταθεί για να το κοιτάξει. Το κτίριο στην Ιερά Οδό λειτουργεί ως  αντι-κόμβος, ενσωματώνοντας την έννοια της κίνησης, της σύνδεσης και της συνεχούς ροής, στόχος είναι η πορεία και όχι η στάση. Σχεδιασμένο με στόχο να είναι ένας ενεργός χώρος συγκέντρωσης και συνάθροισης. Το κτίριο έχοντας την έννοια του εφήμερου αναπτύσσεται γύρω από μια έντονη καμπύλη γεωμετρία που παραπέμπει σε πορείες και διαδρομές. Με αυτό τον τρόπο δημιουργεί μια αίσθηση αέναης κίνησης, προδιαθέτοντας τον περαστικό να εισέλθει και να φύγει. Το ισόγειο έχει δημόσιο χαρακτήρα καθώς εκεί στεγάζονται τα καταστήματα και οι χώροι εστίασης. Τα άνω επίπεδα έχουν ιδιωτικό χαρακτήρα γεγονός που επιτυγχάνεται με τις κινούμενες περσίδες.

Η οργανική καμπύλη, που διατρέχει το κτήριο , λειτουργεί ως αρτηρία που οδηγεί τον χρήστη μέσα από διαφορετικές φάσεις και αντιληπτικές λειτουργίες . Οι χώροι μελετήθηκαν ώστε να επιτρέπουν τη φυσική μετάβαση με εναλλαγές φωτός και σκιάς, δημιουργώντας αισθητικές εμπειρίες που αναπτύσσονται στην τέταρτη διάσταση του χρόνου.

Οι κατοικίες συνυπάρχουν αρμονικά με την εμπορική δραστηριότητα, διαμορφώνοντας έναν πολυλειτουργικό πυρήνα. Ο συνδυασμός του δημόσιου και ιδιωτικού χώρου αποτυπώνεται σε μια συνεχώς μεταβαλλόμενη αλληλεπίδραση στον αστικό ιστό. Οι καμπύλες προσδίδουν μια φυσική, σχεδόν βιομορφική, ποιότητα στον χώρο, αποφεύγοντας τις ευθείες και τις αυστηρές γωνίες που συχνά περιορίζουν την αντίληψη της κίνησης. Πρόκειται ουσιαστικά,  για ένα κτήριο-πέρασμα.

YEAR
2023

AREA
10.500 m2

LOCATION
Iera Odos, Athens

PHOTOGRAPHER

Architectural design + supervision / Αρχιτεκτονική Μελέτη + επίβλεψη
Gavalas Architects

Structural design + supervision / Στατική Μελέτη + επίβλεψη
Omikron Kappa

MEP design + supervision / Ηλεκτρομηχανολογικές Μελέτες + επίβλεψη
Melcon

Construction Management / Διαχείριση εργοταξίου