Flow_logo

EN

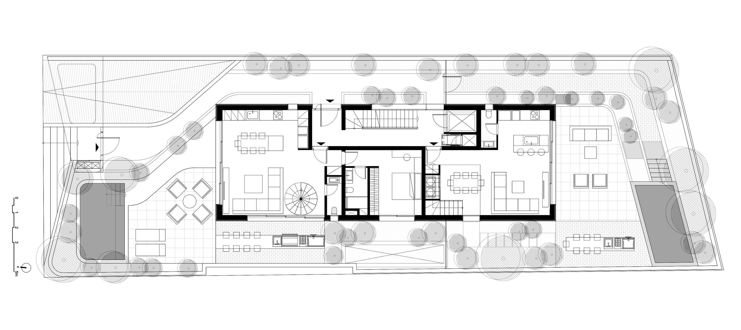
The composition follows the straightforward linearity of the plot, maximizing the footage to accommodate 5 luxurious apartments, exterior green spaces, and a private roof garden and pool.

To avoid the dense proximity of the adjacent plots, allow for views towards the far-off landscape and mountains, and promote a sense of privacy, the main programmatic volume is wrapped in an array of planted curved balconies, whose ever-changing directionality changes based on each apartment’s immediate vicinity. Linear perforated metal sheets envelop the curvilinear balconies giving a rhythmic playfulness to the structure.

Green marble, white and black metals, extensive flora, and white plaster add a translucent quality to the building and make it appear lighter.

GR

Η αρχιτεκτονική σύνθεση ακολουθεί την καθαρή γραμμικότητα του οικοπέδου, αναπτύσσεται σε 6 ορόφους  και φιλοξενεί 5 πολυτελή διαμερίσματα, εξωτερικούς χώρους πρασίνου, καθώς και ένα ιδιωτικό roof garden με πισίνα.

Για να αποφευχθεί η εγγύτητα των παρακείμενων οικοπέδων, να επιτραπεί η θέα προς το μακρινό τοπίο και τα βουνά, καθώς και να προωθηθεί μια αίσθηση ιδιωτικότητας, ο κύριος κτηριακός όγκος περικυκλώνεται από φυτεμένα κυρτά μπαλκόνια, των οποίων η διαρκώς μεταβαλλόμενη κατεύθυνση αλλάζει με βάση την άμεση γειτνίαση κάθε διαμερίσματος. Γραμμικές διάτρητες μεταλλικές επιφάνειες τυλίγουν τα καμπυλόγραμμα μπαλκόνια δίνοντας μια ρυθμική παιχνιδιάρικη διάθεση στη σύνθεση, κάνοντάς την να «ίπταται».

Πράσινο μάρμαρο, λευκά και μαύρα μέταλλα, εκτεταμένη χλωρίδα και λευκός σοβάς, προσθέτουν γυαλάδα και ημιδιαφάνεια στο κτίριο, και το κάνουν να φαίνεται πιο ελαφρύ.

YEAR
2025

AREA
1.450 m2

LOCATION
Evriali Voulas, Athens

PHOTOGRAPHER
Antonis Gavalas

Architectural design + supervision / Αρχιτεκτονική Μελέτη + επίβλεψη
Gavalas Architects

Structural design + supervision / Στατική Μελέτη + επίβλεψη
Dimitris Theodosiou

MEP design + supervision / Ηλεκτρομηχανολογικές Μελέτες + επίβλεψη
Kravvaritis & Partners

Construction Management / Διαχείριση εργοταξίου
Gavalas Architects