Deep_Harmony_logo

EN
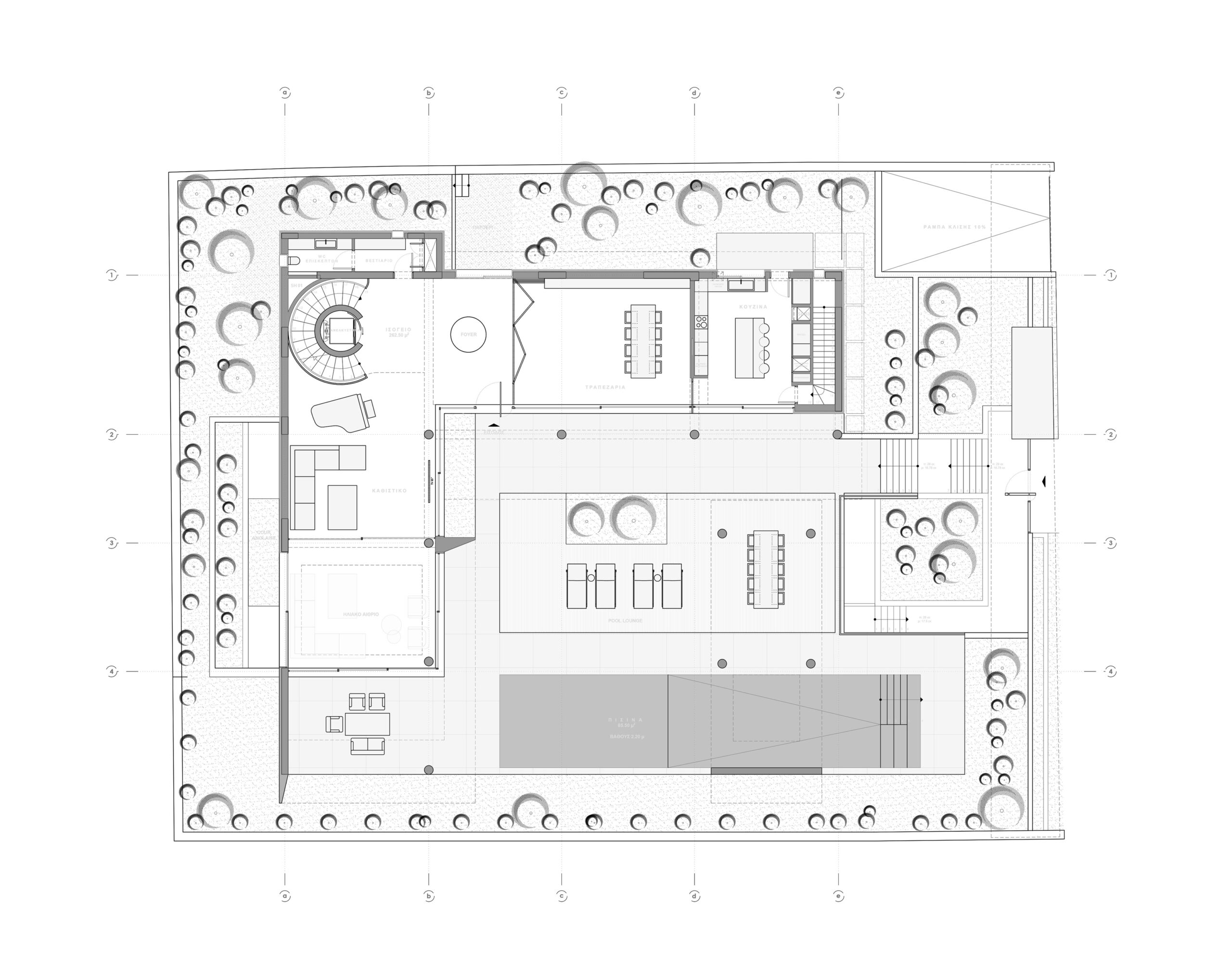
The “Deep Harmony” house is an architectural composition where geometry, transparency and lightness intertwine in a constant balance. The organization of the floor plan strictly follows the axes, forming a space where the discipline of the structure is rendered with a sense of fluidity and suspension. The volumes are precisely developed in a C-shape, detaching the form from monolithicity and allowing the construction details to bring out its delicacy and dynamism. The perforated claustrade elements act as light filters, creating an ever-changing play of light and shadow on the facades, while imparting a translucency that blurs the boundaries between inside and outside. The strategic placement of large openings allows for a seamless interaction between inside and outside, enhancing the sense of freedom and natural flow. The static elements are designed with extreme delicacy, almost disembodying the materiality of the structure. The two-storey voids, combined with thoughtful natural and artificial lighting, intensify the depth of the architectural experience, allowing light to penetrate and transform the sense of space during the day. The layering of light shading, materiality and airy geometry create an environment where the rigor of structure is balanced by a poetic lightness. The architecture is not limited to static volumes, but evolves into a dynamic experience where tectonic rigor intertwines with a sense of suspension, transparency with privacy, and light with shadow, constituting a space of ceaseless flow and constant transformation.

GR
Η μονοκατοικία “Deep Harmony” αποτελεί μια αρχιτεκτονική σύνθεση όπου η γεωμετρία, η διαφάνεια και η ελαφρότητα συνδιαλέγονται σε μια διαρκή ισορροπία. Η οργάνωση της κάτοψης ακολουθεί αυστηρά τους άξονες, διαμορφώνοντας έναν χώρο όπου η πειθαρχία της δομής αποδίδεται με μια αίσθηση ρευστότητας και αιώρησης. Οι όγκοι αναπτύσσονται με ακρίβεια σε σχήμα Γ, αποσπώντας τη μορφή από τη μονολιθικότητα και επιτρέποντας στις κατασκευαστικές λεπτομέρειες να αναδείξουν τη λεπτότητα και τη δυναμική της. Τα διάτρητα στοιχεία claustrade λειτουργούν ως φίλτρα φωτός, δημιουργώντας ένα συνεχώς μεταβαλλόμενο παιχνίδι φωτός και σκιάς στις όψεις, ενώ παράλληλα προσδίδουν έναν ημιδιαφανή χαρακτήρα που θολώνει τα όρια μεταξύ μέσα και έξω. Η στρατηγική τοποθέτηση μεγάλων ανοιγμάτων επιτρέπει μια αδιάλειπτη αλληλεπίδραση μεταξύ εσωτερικού και εξωτερικού χώρου, ενισχύοντας την αίσθηση της ελευθερίας και της φυσικής ροής. Τα στατικά στοιχεία σχεδιάζονται με εξαιρετική λεπτότητα, σχεδόν εξαϋλώνοντας την υλικότητα της κατασκευής. Τα διώροφα κενά, σε συνδυασμό με τον μελετημένο φυσικό και τεχνητό φωτισμό, εντείνουν το βάθος της αρχιτεκτονικής εμπειρίας, επιτρέποντας στο φως να διαπερνά και να μεταλλάσσει την αίσθηση του χώρου κατά τη διάρκεια της ημέρας. Η διαστρωμάτωση φωτοσκίασης, η υλικότητα και η αέρινη γεωμετρία δημιουργούν ένα περιβάλλον όπου η αυστηρότητα της δομής εξισορροπείται από μια ποιητική ελαφρότητα. Η αρχιτεκτονική δεν περιορίζεται σε στατικούς όγκους, αλλά εξελίσσεται σε μια δυναμική εμπειρία, όπου η τεκτονική αυστηρότητα συνδιαλέγεται με την αίσθηση της αιώρησης, η διαφάνεια με την ιδιωτικότητα, και το φως με τη σκιά, συγκροτώντας έναν χώρο αδιάκοπης ροής και διαρκούς μετασχηματισμού.

YEAR
2025

AREA
1.082 m2

LOCATION
Vouliagmeni

PHOTOGRAPHER

Architectural design + supervision / Αρχιτεκτονική Μελέτη + επίβλεψη
Gavalas Architects

Structural design + supervision / Στατική Μελέτη + επίβλεψη
Dimitris Theodosiou

MEP design + supervision / Ηλεκτρομηχανολογικές Μελέτες + επίβλεψη
Stavros Dimitriou & Pantelis Panteliadis

Construction Management / Διαχείριση εργοταξίου
Gavalas Architects