Azimouth

EN

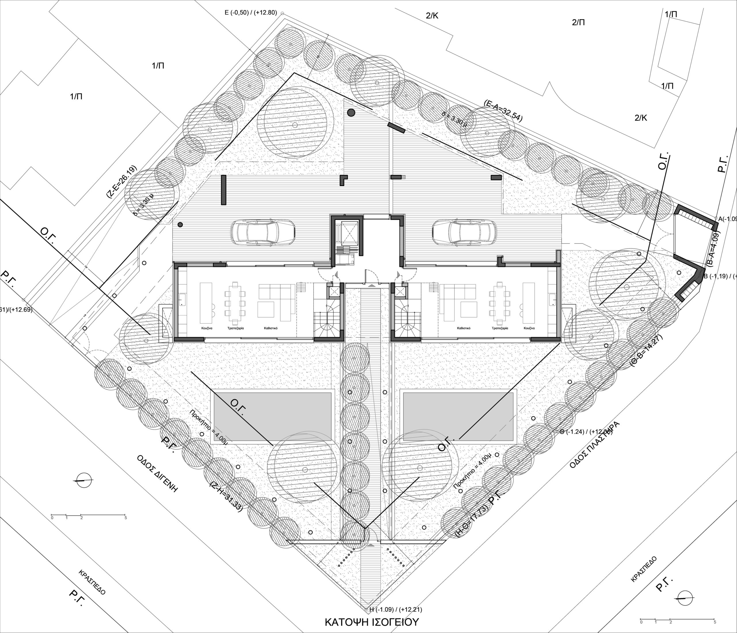
The “Azimuth+” apartment building emerges from the ground with a simple and austere presence, combining the purity of form with the harmony of the built environment. Its architecture, highly discreet yet imposing, draws its intensity from the diagonal of the plot, a geometric axis that highlights the dynamics of adaptation to urban space by maximising coverage and increasing distances from neighbouring buildings. This shelter acknowledges its relationship to landscape, light and time as a “site specific” project that respects its existence.
Azimuth+ is characterized by an extremely rigorous and clean design, which captures the architectural concept of functionality through simplicity and geometric precision. 

This drastic gesture, the result of the forced coexistence of law and composition – necessity and desire – provides the maximum possible length for the building’s facades in need of sunlight, enhancing the sense of continuous movement and the development of the structure in time.
The structure applies the principle of minimal intervention, with strict lines and clean geometric shapes that highlight the desire for harmony and balance.
The choice of materials such as concrete and glass, brings out the sense of a primal simplicity and reinforces the contemporary identity of the project. The transparency assists the connection between interior and exterior. The black elements desire to make their presence subtle to give a sense of suspension and ephemerality. The positioning of the volumes, combined with geometric simplicity, allows an organic adaptation to the environment and the urban fabric.
The architecture integrates geometry with the practical dimension of layout, incorporating the notion of light and shadow control, the free flow of spaces and the durability of the orthogonal.

GR

Η πολυκατοικία “Azimuth+” αναδύεται από το έδαφος με μια λιτή και αυστηρή παρουσία, συνδυάζοντας την καθαρότητα της μορφής με τη δυναμική προσαρμογή στο περιβάλλον της. Η αρχιτεκτονική της, άκρως διακριτική και ταυτόχρονα επιβλητική, αντλεί την ένταση της από τη διαγώνιο του οικοπέδου, έναν γεωμετρικό άξονα που αναδεικνύει την ένταξή της στον πυκνό αστικό χώρο προσαρμόζοντας την κάλυψη και αυξάνοντας τις αποστάσεις από τα όμορα κτίρια. Η πολυκατοικία αυτή, αναγνωρίζει τη σχέση του με το τοπίο, το φως και τον χρόνο ως ένα “site specific” έργο που σέβεται την ύπαρξη του.

Το κτίριο χαρακτηρίζεται από έναν εξαιρετικά αυστηρό και καθαρό σχεδιασμό, που αποτυπώνει την αρχιτεκτονική έννοια της λειτουργικότητας μέσα από τη λιτότητα και τη γεωμετρική ακρίβεια.  Η δραστική αυτή χειρονομία, αποτέλεσμα της αναγκαστικής συνεύρεσης νόμου και σύνθεσης,  -πρέπει και θέλω –  παρέχει το μέγιστο δυνατό μήκος για τις όψεις του κτιρίου που έχουν ανάγκη για ηλιασμό, ενισχύοντας την αίσθηση της συνεχούς κίνησης και της ανάπτυξης της δομής στο χρόνο.

Η “Azimuth+” εφαρμόζει την αρχή της ελάχιστης παρέμβασης, με τις αυστηρές γραμμές και τα καθαρά γεωμετρικά σχήματα να αναδεικνύουν την επιθυμία για αρμονία και ισορροπία.

Η επιλογή των υλικών και των επιφανειών αναδεικνύει την αίσθηση  μιας πρωταρχικής απλότητας. Η χρήση των στιλπνών ακμών και του γυαλιού, ενισχύει τη σύγχρονη ταυτότητα του έργου, ενώ ταυτόχρονα εξασφαλίζει την απαραίτητη διαφάνεια για τη σύνδεση του εσωτερικού με το εξωτερικό περιβάλλον. Τα μαύρα στοιχεία θέλουν να κάνουν διακριτική την παρουσία τους προσδίδοντας την αίσθηση της αιώρησης και του εφήμερου.

Η αρχιτεκτονική ενοποιεί τη γεωμετρία με την πρακτική διάσταση της διαρρύθμισης, ενσωματώνοντας την έννοια του ελέγχου του φωτός και της σκιάς, της ελεύθερης ροής των χώρων και της ανθεκτικότητας του ορθοκανονικού.

YEAR
2024

AREA
1650 m2

LOCATION
Voula, Athens

PHOTOGRAPHER
Antonis Gavalas

Architectural design + supervision / Αρχιτεκτονική Μελέτη + επίβλεψη
Gavalas Architects & Stasino Developments

Structural design + supervision / Στατική Μελέτη + επίβλεψη
George Giakoumelis

MEP design + supervision / Ηλεκτρομηχανολογικές Μελέτες + επίβλεψη
Stasino Developments

Construction Management / Διαχείριση εργοταξίου
Stasino Developments

ΝΙΚΗΦΟΡΟΣ ΤΟΛΗΣ

Ο Νικηφόρος γεννημένος στην Ν. Σμύρνη Αττικής. Σπούδασε στο πολυτεχνείο της Κρήτης στο τμήμα αρχιτεκτόνων μηχανικών. Τα αρχιτεκτονικά του ενδιαφέροντα του στρέφονται γύρω από το πολυδιάστατο του δομικού ορίου και μορφής. Η επαγγελματική του εμπειρία ξεκίνησε από τεχνικό γραφείο με υποδομές και έργα κλίμακας. Στη συνέχεια απέκτησε εμπειρία σε αρχιτεκτονικό γραφείο στον σχεδιασμό κατοικιών στις Κυκλάδες, ενώ ταυτόχρονα έχει συμμετάσχει σε αρχιτεκτονικούς διαγωνισμούς.

ΧΡΙΣΤΙΝΑ ΡΑΦΤΟΠΟΥΛΟΥ

 

Γεννήθηκε και μεγάλωσε στην Αθήνα. Σπούδασε αρχιτεκτονική στην Αρχιτεκτονική Σχολή του Πανεπιστημίου Πατρών από όπου και αποφοίτησε το 2015, ενώ το 2019 ολοκλήρωσε το Διατμηματικό Πρόγραμμα Μεταπτυχιακών Σπουδών του ΕΜΠ με κατεύθυνση «Πολεοδομία – Χωροταξία». Από το 2018 είναι μέλος του ΤΕΕ. Από το 2016 έχει συνεργαστεί με τεχνικά και αρχιτεκτονικά γραφεία στην Αθήνα, κυρίως σε έργα μικρής και μεσαίας κλίμακας έχοντας αναβαθμισμένο ρόλο στην εξέλιξη των έργων, από το στάδιο προμελέτης – παρουσίασης έως και την επίβλεψη της κατασκευής. Έχει λάβει μέρος σε workshop στην Ελλάδα και στο εξωτερικό και έχει διδάξει Πολεοδομία στα πλαίσια παροχής επικουρικού διδακτικού έργου κατά τη διάρκεια των μεταπτυχιακών της σπουδών. Πιστεύει ότι η αρχιτεκτονική είναι μια δυναμική διαδικασία και αναζητά τη διαρκή εξέλιξη στην επαγγελματική της σταδιοδρομία και την απόκτηση νέων γνώσεων.

ΓΙΟΥΛΗ ΠΑΠΑΝΑΣΤΑΣΙΟΥ

 

Γεννήθηκε στην Αθήνα και αποφοίτησε από την Αρχιτεκτονική Σχολή του Αριστοτελείου Πανεπιστημίου Θεσσαλονίκης (Α.Π.Θ.). Διαθέτει εξειδικευμένη επιμόρφωση στην «Τεχνολογία Τοπίου και Σχεδιασμό Φυτεύσεων» (Ε.Κ.Π.Α.) και, από το 2024, είναι Πιστοποιημένη Σχεδιάστρια Παθητικών Κτιρίων (Ελληνικό Ινστιτούτο Παθητικών Κτιρίων).
Έχει εργαστεί στην Ελλάδα και στη Σερβία, αναλαμβάνοντας τον σχεδιασμό και την επίβλεψη έργων κατοικίας, γραφείων, χώρων εστίασης, αγροτουριστικών εγκαταστάσεων, χώρων δημιουργικής απασχόλησης παιδιών, καθώς και την επέκταση πλωτού ξενοδοχείου (διάκριση BIG SEE Awards). Επιπλέον, έχει δραστηριοποιηθεί στη σύνταξη τεχνικών τευχών προδιαγραφών αρχιτεκτονικών υλικών.
Παράλληλα, έχει συμμετάσχει σε διεθνείς και εθνικούς Αρχιτεκτονικούς Διαγωνισμούς Ιδεών, μεταξύ των οποίων: «Europan 6» (Διάκριση: Β΄ επιλαχόντες), «Καταστήματα Γραφείων ΔΡΟΜΕΑΣ» (Διάκριση: Α΄ επιλαχόντες), «Room 18», «Cook 8», «Pandemic Architecture».
Έχει συγγράψει το βιβλίο με τίτλο «Κτίρια Ελλήνων της Διασποράς σε μια Θετή Πατρίδα» (Ζέμουν – Βελιγράδι, 18ος–20ός αιώνας).
Διακρίνεται για την ευαισθησία και το ιδιαίτερο ενδιαφέρον της στη βιώσιμη αρχιτεκτονική και στην καινοτομία, με έμφαση στη δημιουργία ενεργειακά αυτόνομων κελυφών κτιρίων και αρχιτεκτονικών τοπίων.

ΧΡΥΣΑ ΜΑΝΩΛΑΡΑΚΗ

Ολοκλήρωσε τις σπουδές της στη Σχολή Αρχιτεκτόνων Μηχανικών του Δημοκρίτειου Πανεπιστημίου Θράκης από όπου αποφοίτησε με άριστα. Κατά την διάρκεια των σπουδών της συμμετείχε σε διαπανεπιστημιακά εργαστήρια στην Ελλάδα και το εξωτερικό. Μετά την ολοκλήρωση των σπουδών της εργάστηκε πάνω σε διάφορα projects μικρής και μεγάλης κλίμακας αποκτώντας εμπειρία στον σχεδιασμό και υλοποίηση έργων κατοικιών, ξενοδοχείων, επαγγελματικών χώρων καθώς και χώρων εστίασης.
gavalas-architects
Επισκόπηση Απορρήτου

Αυτός ο ιστότοπος χρησιμοποιεί cookies, ώστε να μπορούμε να σας παρέχουμε την καλύτερη δυνατή εμπειρία χρήστη. Οι πληροφορίες των cookies αποθηκεύονται στο πρόγραμμα περιήγησής σας και εκτελούν λειτουργίες όπως η αναγνώρισή σας όταν επιστρέφετε στον ιστότοπό μας και η βοήθεια της ομάδας μας να κατανοήσει ποιες ενότητες του ιστότοπου θεωρείτε πιο ενδιαφέρουσες και χρήσιμες.

Περισσότερες πληροφορίες σχετικά με την Πολιτική Απορρήτου μας