Anassa_logo

EN

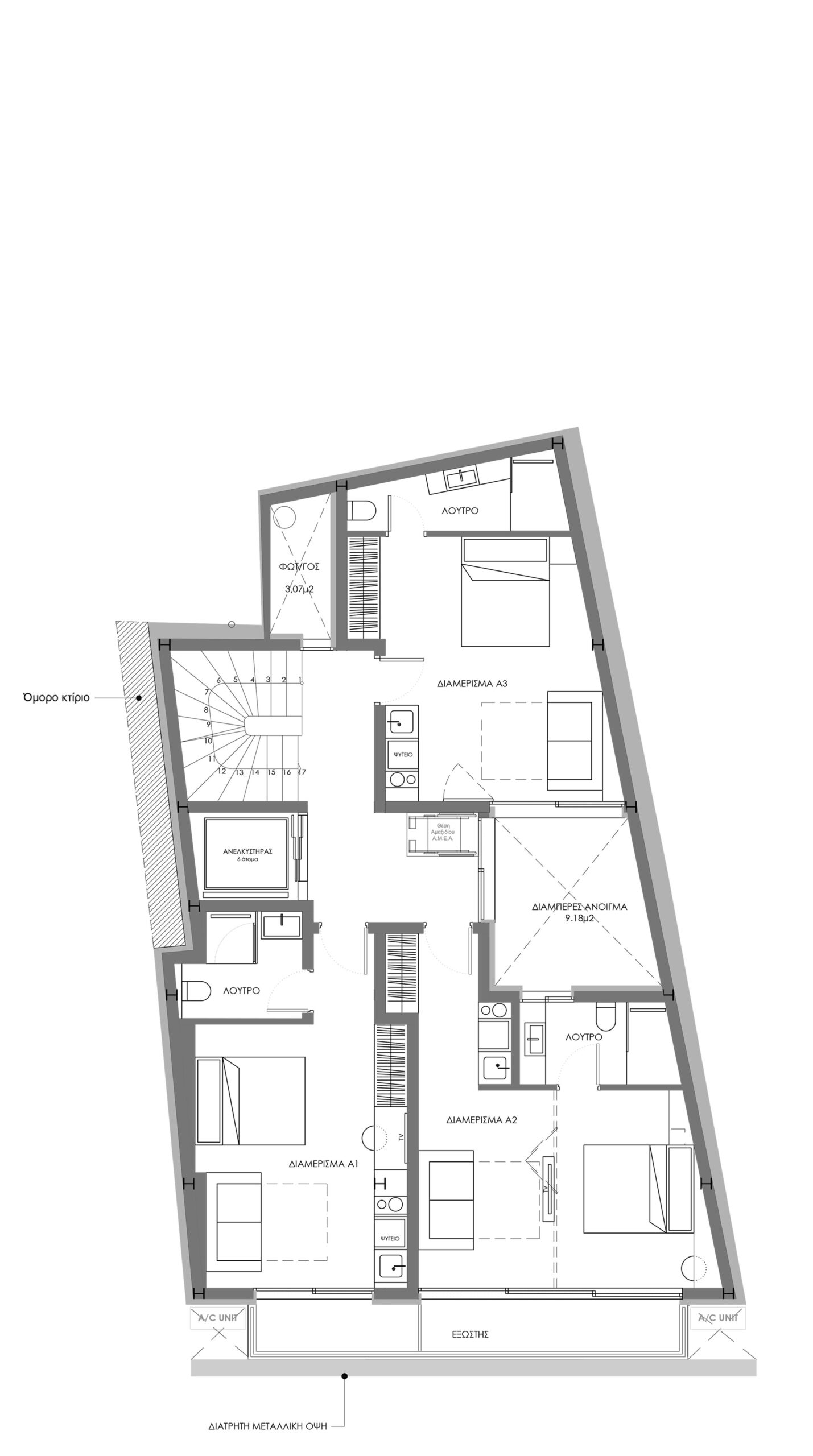
The Anassa Suites Hotel is located in the historic centre of Athens. It is adjacent to a neoclassical and a modern building, therefore it has to subtly declare its identity, respecting the proportions and openings of the adjacent buildings. The aim of the design is to be a unique oasis within the urban complexity of the centre, to distance itself from the noise and to filter the precious view towards the citadel. This intention is achieved with a double shell that covers the view like a veil that protects the use without restricting it. This double facade with its complex symmetry gives a sense of appropriation to its exterior, making the environment ideal for rest.
There are numerous patios like green lungs inside the building creating zones of refreshment and well-being for the users. The interior is landscaped with natural metal and marble materials giving an air of luxury and elegance.

The respect for proportions, the respect for the urban front and the double shell offers the necessary conditions for a building “breath” in the metropolitan centre.

GR

Το ξενοδοχείο Anassa Suites βρίσκεται στο ιστορικό κέντρο της Αθήνας. Γειτνιάζει με ένα νεοκλασικό και ένα μοντέρνο κτήριο, συνεπώς και πρέπει να δηλώσει διακριτικά την ταυτότητά του, σεβόμενο τις αναλογίες και τα ανοίγματα των όμορων κτιρίων. Στόχος του σχεδιασμού είναι να αποτελεί μια μοναδική όαση μέσα στην αστική πολυπλοκότητα του κέντρο, να αποστασιοποιηθεί από το θόρυβο και να φιλτράρει την ανθρώπινη δραστηριότητα. Αυτή η πρόθεση επιτυγχάνεται με ένα διπλό κέλυφος που καλύπτει την όψη σαν ένα πέπλο που προστατεύει τον χρήση χωρίς όμως να τον περιορίζει. Η διπλή αυτή όψη με την πολύπλοκη γεωμετρικότητα της δίνει μια αίσθηση οικειοποίησης του εξωτερικού χώρου του, κάνοντας το περιβάλλον ιδανικό για ανάπαυση.

Το κεντρικο αίθριο σαν πράσινος πνεύμονας στο εσωτερικό του κτηρίου δημιουργεί ζώνες δροσισμού και ευεξίας στους χρήστες. Το εσωτερικό είναι διαμορφωμένο με φυσικά υλικά δίνει μια πνοή πολυτέλειας και κομψότητας.

Η τήρηση των αναλογιών, ο σεβασμός στο αστικό μέτωπο και το διπλό κέλυφος προσφέρει τις απαραίτητες προϋποθέσεις για ένα κτήριο “ανάσα” στο μητροπολιτικό κέντρο.

YEAR
2026

AREA
680 m2

LOCATION
Athens City Center

PHOTOGRAPHER

Architectural design + supervision / Αρχιτεκτονική Μελέτη + επίβλεψη
Gavalas Architects

Structural design + supervision / Στατική Μελέτη + επίβλεψη
Gavalas Ioannidou Structures

MEP design + supervision / Ηλεκτρομηχανολογικές Μελέτες + επίβλεψη
ENERTEK

Construction Management / Διαχείριση εργοταξίου